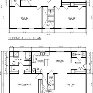
Two story homes often require less foundation, roofing, plumbing, and wiring, and therefore tend to be the least expensive in regards to cost per square foot—they can be ideal for smaller lots thanks to these benefits. A two story offers more separation between rooms, and is a great option for those who desire their own living space or getaway.
Please note, we can customize any standard floor plan and also offer Design/Build services. Click on an image below to either see a model literature brochure or floorplans for that model!
Showing all 10 results




















