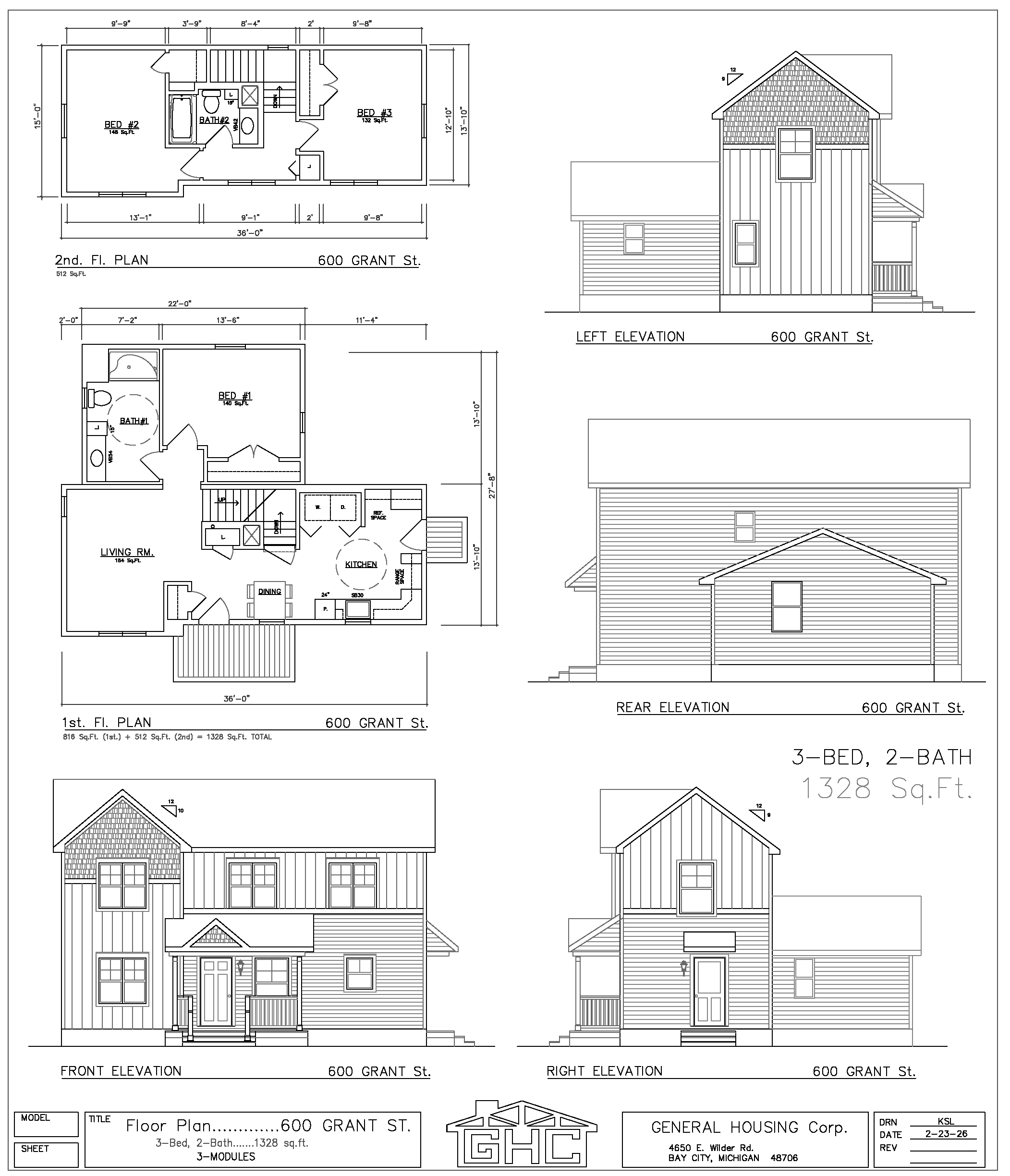
Description
The Grant St. is a new concept currently “On the Drawing Board,” designed with a focus on high-value living and architectural efficiency. While this model is being developed with “Habitat for Humanity” projects in mind, its smart use of space and cost-effective design make it an appealing option for any building site.
The Grant St. Highlights:
-
Size & Layout: A 1,328 sq. ft. home featuring 3 bedrooms and 2 bathrooms.
-
Value-Driven Engineering: Although it is technically a two-story home, it is engineered as a 3-module build. This allows for the spacious feel and aesthetic of a traditional two-story while keeping the project more value-friendly compared to standard two-story configurations.
-
Lot Efficiency: Two-story designs typically offer the best price-per-square-foot for any lot size, and the Grant St. maximizes this advantage by providing a compact footprint with a roomy interior.
This concept represents our commitment to providing durable, precision-built housing solutions that don’t compromise on style or structural integrity.



