Description
The Standard Plan
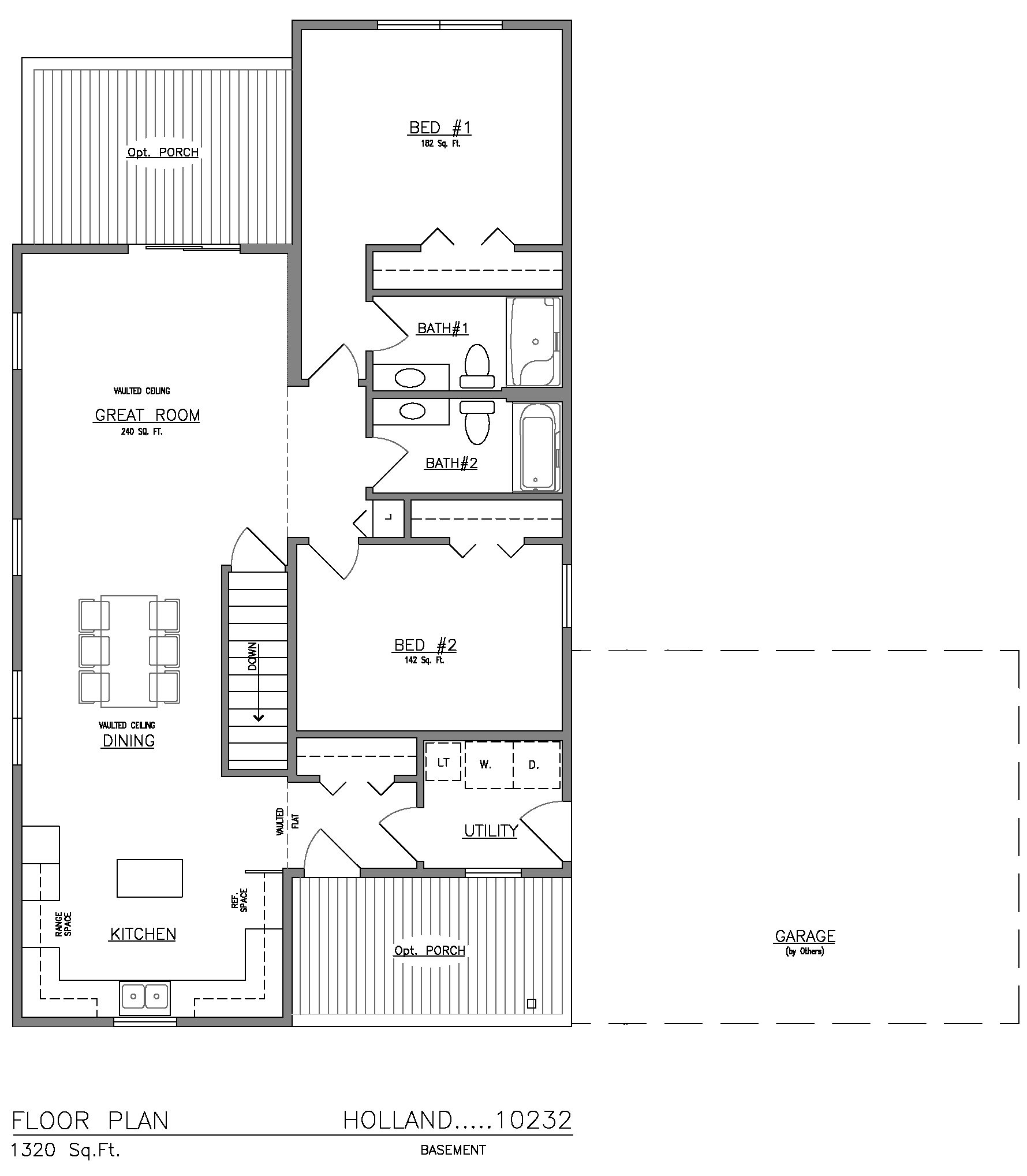
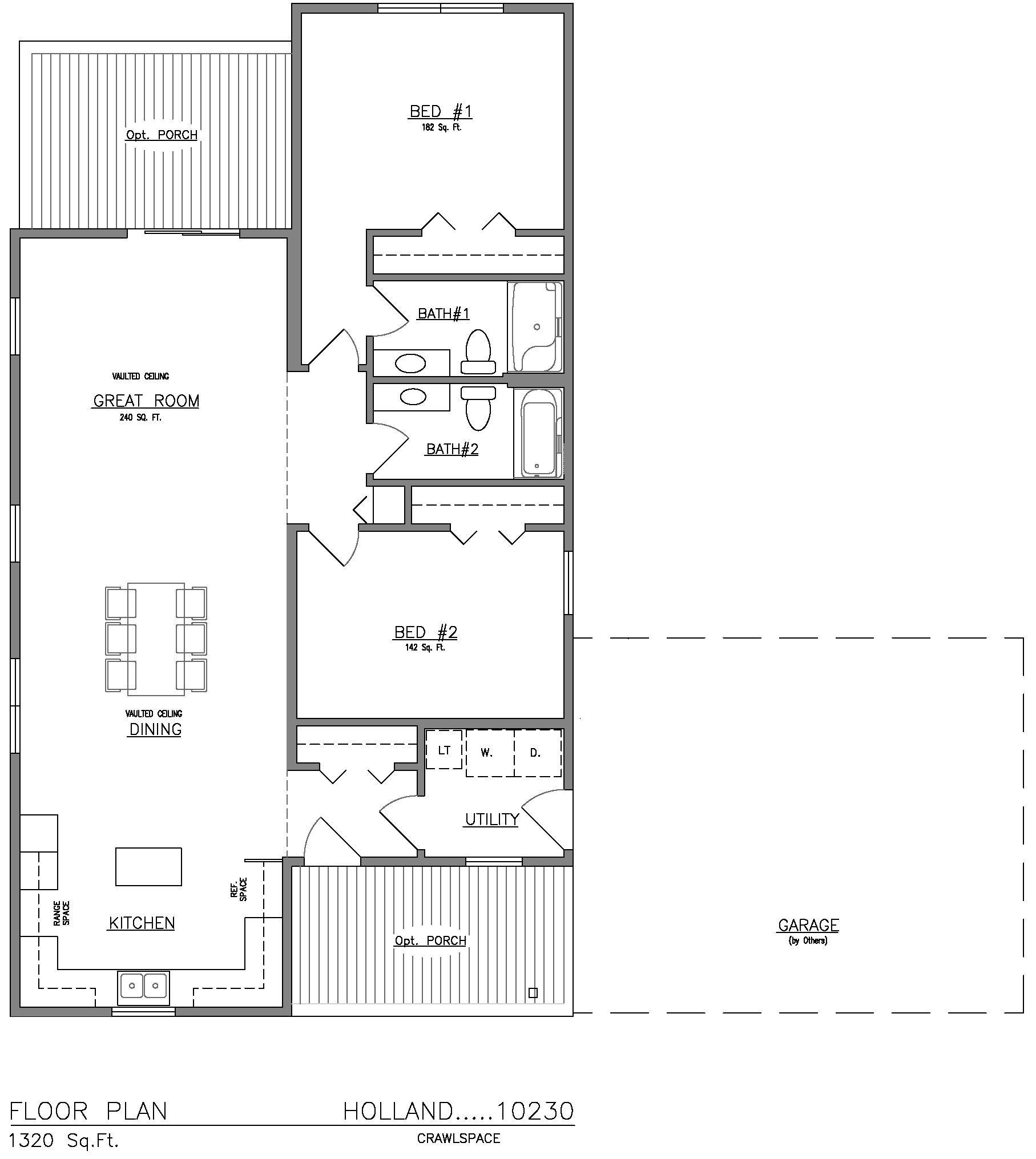
The Holland represents the pinnacle of modern, efficient living. At 1,320 square feet, this 2-bedroom, 2-bathroom ranch is engineered to maximize every inch of its footprint. The standard design features a clean, streamlined exterior that highlights GHC’s precision-built framework. Inside, you’ll find an expansive living and dining area anchored by a kitchen designed for both daily life and effortless entertaining. This configuration is perfect for homeowners looking for a sophisticated, low-maintenance Michigan retreat that doesn’t compromise on high-end features like a spacious master suite and a large kitchen island.
Available Option: Factory-Installed Roof Porch
For those who want to blend indoor comfort with outdoor living, we offer The Holland with an optional integrated roof porch. Unlike site-built additions, this porch is factory-installed during our multi-station build process. By integrating the porch into the initial engineering, we ensure it matches the structural integrity and aesthetic of the rest of your home perfectly. Built entirely within our climate-controlled facility, this option provides a seamless, weather-protected transition to the outdoors, adding classic curb appeal and a perfect spot to enjoy a Michigan summer evening.
You may download this brochure for easier viewing with the “Download” button underneath it!







